- · 《房地产导刊》征稿要求[06/29]
- · 《房地产导刊》投稿方式[06/29]
- · 《房地产导刊》栏目设置[06/29]
- · 《房地产导刊》刊物宗旨[06/29]
买房时头脑一热,买到奇葩户型,装修很难办?
作者:网站采编关键词:
摘要:有时候在人生人海的楼市,看到不知道是不是托的人,在叫喊着“前面的快点!”,顿时觉得不管怎么样先买下来再说。 很多人买下后并不是拿来投资,是作为自住房来用的。因为对户
有时候在人生人海的楼市,看到不知道是不是托的人,在叫喊着“前面的快点!”,顿时觉得不管怎么样先买下来再说。
很多人买下后并不是拿来投资,是作为自住房来用的。因为对户型不是太了解,直到装修阶段才发现户型很奇怪,觉得很难装修设计。
不过从设计师的角度,理论上只要是个房子都能量身打造属于这个房子的装修,就像人长得都不一样,但都有适合自己的穿衣搭配一样。
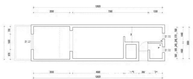
案例1:消灭走道
▼修改前

老公房的种种“别扭”不言而喻。
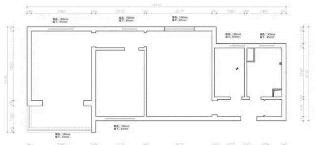
▼修改后

想要物尽其用,就要学会消减或消灭走道。
入门处的走道用作厨房,这就是一种消灭的方法;
客厅的走道装上电视,增设餐厅,这也是一种消灭走道的办法。
卧室门外的走道虽然不能占据,但墙壁上可以挂上几幅画或做成照片墙,增加美感,让这一处空间成为一道风景。
案例2:客餐厨三合一
▼修改前

大片空间,无从下手,
稍有不慎就会产生浪费。
▼修改后

调整厨房与卫生间的门:将卫生间的门改为推拉门,避免与玄关空间冲突;将厨房的门转移至与客厅相对,让客厅、厨房、餐厅一眼看遍。
人从大门走入,经过一段短暂的走道,便可看见客餐厨三者通透的场景,会有一种柳暗花明又一村的感觉。
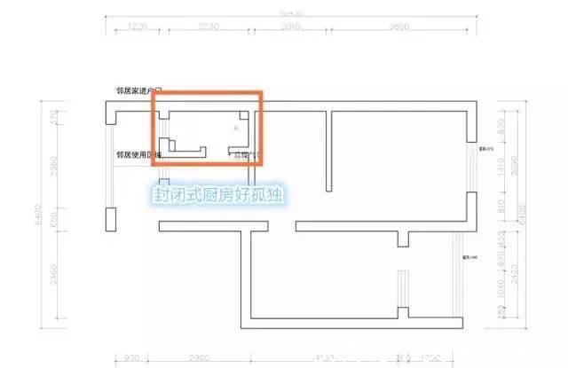
案例3:
▼修改前

厨房不开放,阴暗的走道难见阳光;
厨房开放,面向两扇门,也没什么意思。
▼修改后

既然“开放”与“不开放”是个问题,那就采取一个“折中”的办法吧。
设计师巧用“半开放式厨房”概念:在厨房开口处设置了一处精巧的吧台。
如果业主过着二人世界的生活,那么吧台也可以实现就餐功能;
如果今日就餐的人较多或菜品较丰盛,那么就请移步餐厅,尽情享用。
案例4:巧用透屏?隔而不断
▼修改前

入门处较为狭小,一进门就看见一堵墙;
房间内部多用墙面隔断,曲曲折折。
▼修改后

在玄关处增设一面墙镜,瞬间让空间在视觉上增大了一倍,豁然开朗;
引入“透屏”概念,将主卧室门旁的墙壁调整为透屏,既能起到区域划分的作用,又可以让视线通透,避免产生“曲曲折折”的不适感;
在电视后方巧设柜子,既不影响功能性与实用性,又增添了美观性。
案例5:打破规则?巧省空间
▼修改前
不知道鞋架应该放在哪里,
不知道餐厅应该置于何地。

▼修改后

这间房的客厅结构特殊,设计师将鞋柜内移,把入门左手边的位置留给餐厅。
由于空间有限,餐厅也不宜墨守成规,可以采用折叠餐桌,在闲置时收折到墙上,让这块空间既被赋予了功能,又不被占用。
客厅中的茶几也可以安装滚轮,就餐人数增多时,将茶几移至一旁,灵活多变。
案例6:让厨房为家庭调味
▼修改前
厨房与客厅面积较小,整体感觉比较闷。

▼修改后

这个家中住着一对老夫妻和一对年轻夫妻,两间卧室足够宽敞,但厨房和客厅显得有些局促。
设计师将厨房打开,别出心裁地用一张半圆形的餐桌连接了厨房与客厅,将这两块空间结合在一起。
设计师强调:开放式厨房是增进家庭成员关系的一剂调味品。
试想一下,无论是婆婆下厨还是儿媳下厨,她们的丈夫总能在旁与她们搭上两句话,日后如果有了小孩,孩子在客厅玩耍时,妈妈或者祖母也能在厨房监护。
案例7:沙发也能因地制宜
▼修改前
入门处较为狭小,一进门就看见一堵墙;
房间内部多用墙面隔断,曲曲折折。

▼修改后

设计师首先将厨房的一面墙延伸出来,这一点也是出于对风水禁忌的尊重,让厨房低调内敛、韬光养晦;
文章来源:《房地产导刊》 网址: http://www.fdcdkzzs.cn/zonghexinwen/2022/0110/1714.html
上一篇:房地产是货币“蓄水池”吗
下一篇:知网期刊最新影响因子更新,快去看看你发的期